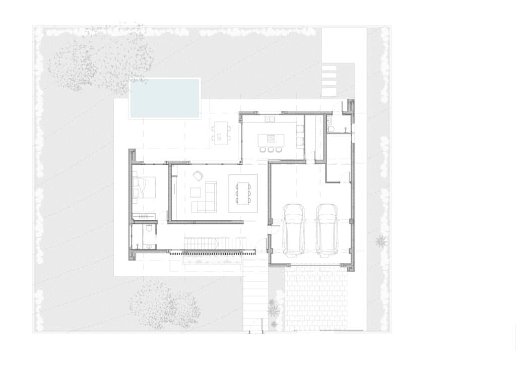
Superficie: 290 m2

Ubicación: Calaf

Año: 2021